LOFT MAIN D’OR

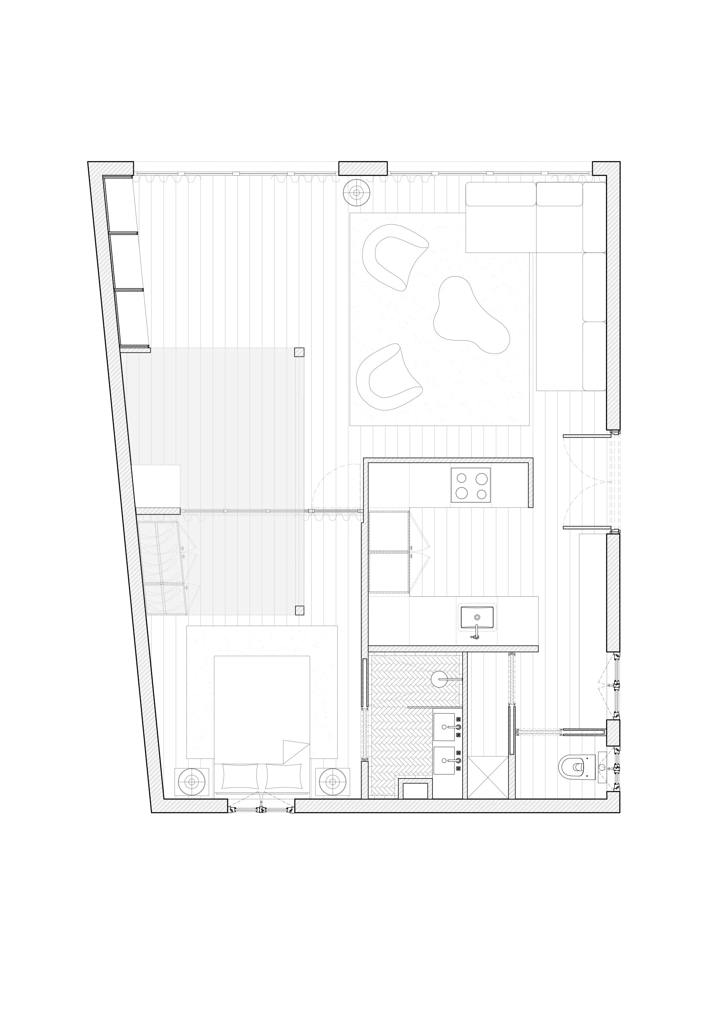
Verrière acier, brique peinte et parquet blanc sont les codes de cet appartement-galerie au coeur du 11ème arrondissement. Au détour du petit passage pavé de la main d’or, se découvre ce loft, au fond d’une cour arborée, abrité de l’effervescence du quartier. L’ambiance épurée accentue la luminosité et révèle une collection d’objets et de céramiques colorés, chers à la cliente, elle-même passionnée de céramiques. Une verrière graphique sépare l’espace nuit de l’espace jour tout en laissant la lumière naturelle inonder l’appartement. L’incroyable hauteur sous plafond du loft a également permis de créer une mezzanine nichée qui accueille une chambre d’ami. Les zelliges verts choisis pour la salle de bain apportent une touche artisanale dont la couleur fait écho à l’abondance de plantes et de mobilier coloré.

Suivant
Suivant

Villa Minuty